RinellaNicolaimpresa edile

 
 
 

Costruiamo la tua casa

 

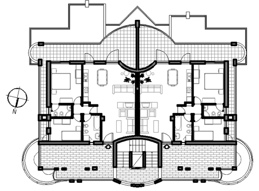
Piano Secondo

7
8
Il piano secondo ospita due residenze unifamiliari gemelle e speculari; gli ingressi sono collocati ai due lati del vano scale, inseriti all'interno di una parete vetrata incassata nella parete e collocati in corrispondenza di ballatoi aperti ai quali si accede dal vano scale e ascensore.
Metratura Posti Letto Giardino/Balcone
Appartamento 7 70 mq 3 63,5 mq [ dettaglio ]
Appartamento 8 70 mq 3 63,5 mq [ dettaglio ]